Nieruchomosci CRM
Estate Office CRM
Strona dostępna tylko dla zalogowanych.
Wersja demo: podgląd CRM jest dostępny publicznie. Zapisywanie danych jest dostępne tylko dla administratora.
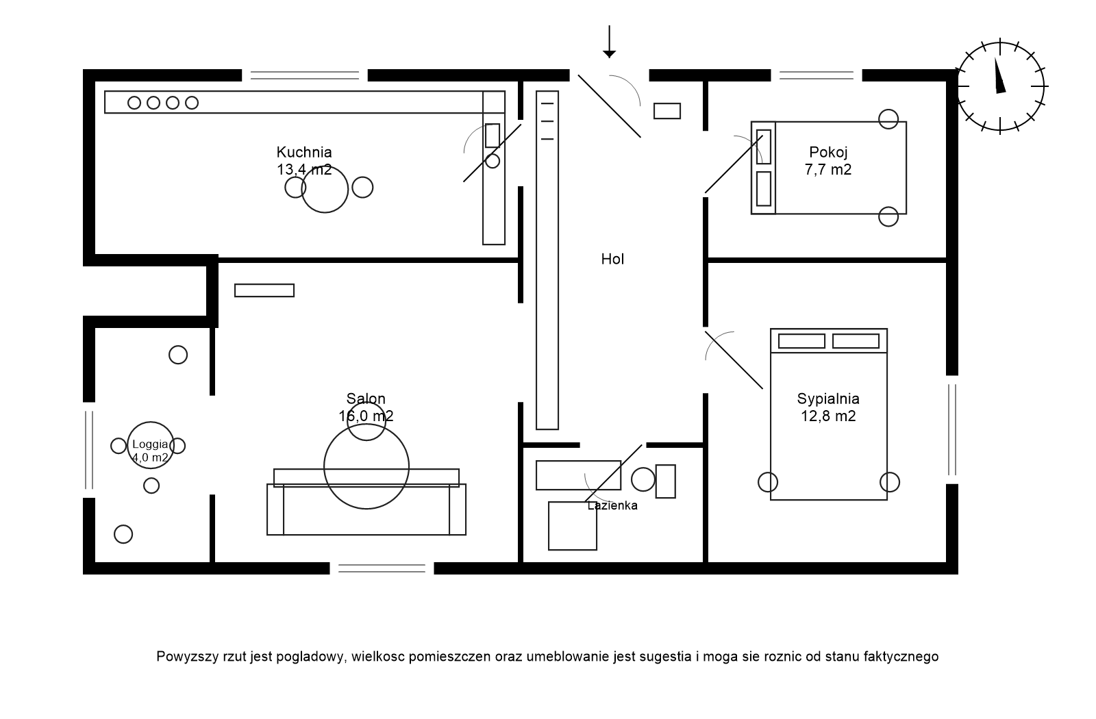
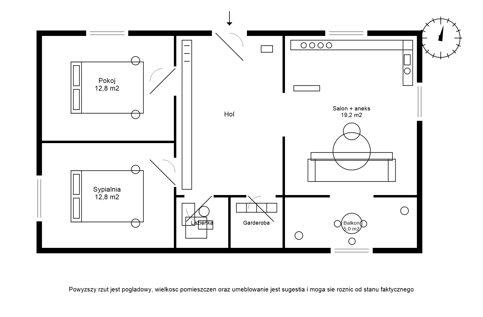
Profil nieruchomości: OF-DEM-00143
- Typ transakcji
- SPRZEDAZ
- Rodzaj nieruchomości
- DOM
- Adres
- ul. Widok 90, 30-202, Krakow, Bronowice
- Powiat
- Krakow
- Gmina
- Krakow
- Cena
- 2 937 763 EUR
- Cena za m2
- 12 040.01 EUR /m2
- Metraż
- 244.00
- Wielkosc dzialki
- 2096 m2
- Ksztalt dzialki
- Trojkat
- Wymiary dzialki
- A: 38 m, B: 24 m, C: 36 m
- Pokoje
- 7
- Rok budowy
- 2015
- Stan prawny
- Inne
- Numer KW
- WA1M/67129963/0
- Brak KW
- Nie
- Opiekun
- Hubert Piotrowski
- Ekspozycja
- wschod, poludnie, polnoc
- Widok
- panorama, zielec, podworko
- Rozklad
- narozne
- Udogodnienia
- monitoring
- Wyposażenie
- piekarnik, lodowka, mikrofala, zmywarka
- Tagi
- -
- Miejsce parkingowe
- -
- Typy parkingu
- -
- Parking: najemne/podziemne/garaz
- - / - / -
- Dodatkowe powierzchnie
- Taras: tak, ilosc: 1, pow.: 17 m2; Ogrodek: tak, pow.: 204 m2
- Mapa (lat,lng)
- 50.1498000, 19.8491000
- Adres pinu mapy
- ul. Widok 90, Krakow
- Eksport WWW
- Tak
- Eksport Portale
- Nie
- Portal - ostatnie zdarzenie
- -
- Portal - status
- -
- Portal - liczba prob
- 0
- Portal - ostatnia aktualizacja
- -
- Utworzono
- 2026-04-14 15:59:37
Opis nieruchomości
Oferta demo na rynek polski. Lokalizacja: Krakow, Bronowice. Nieruchomosc gotowa do prezentacji.
Powiązani klienci
Umowa powiązana
Przejdź do umowy UM-DEM-00197Galeria i rzuty
Wygenerowac PDF oferty:
Wybierz sekcje, ktore maja byc widoczne w PDF.
| Numer oferty | Adres | Cena | Cena za m2 | Metraż | Liczba pokoi | Opiekun |
|---|---|---|---|---|---|---|
| OF-DEM-00170 | ul. Szafirowa 42, Krakow | 26 768 EUR | 193.97 EUR /m2 | 138.00 | 6 | Filip Kaczor |
| OF-DEM-00169 | ul. Widok 187, Krakow | 3 194 069 PLN | 19 241.38 PLN /m2 | 166.00 | 8 | Filip Kaczor |
| OF-DEM-00168 | ul. Polna 102, Krakow | 1 964 884 EUR | 15 471.53 EUR /m2 | 127.00 | 1 | Filip Kaczor |
| OF-DEM-00167 | ul. Slowackiego 77, Krakow | 1 983 199 PLN | 7 686.82 PLN /m2 | 258.00 | 8 | Filip Kaczor |
| OF-DEM-00166 | ul. Parkowa 51, Krakow | 1 451 162 USD | 267.35 USD /m2 | Filip Kaczor | ||
| OF-DEM-00165 | ul. Lesna 161, Krakow | 11 454 PLN | 110.13 PLN /m2 | 104.00 | 4 | Oliwia Michalska |
| OF-DEM-00164 | ul. Krolewska 144, Krakow | 30 815 EUR | 933.79 EUR /m2 | 33.00 | 6 | Oliwia Michalska |
| OF-DEM-00163 | ul. Kwiatowa 20, Krakow | 1 945 309 USD | 14 199.34 USD /m2 | 137.00 | 6 | Oliwia Michalska |
| OF-DEM-00162 | ul. Jasna 9, Krakow | 1 138 733 USD | 31 631.47 USD /m2 | 36.00 | 3 | Oliwia Michalska |
| OF-DEM-00161 | ul. Klonowa 202, Krakow | 20 615 EUR | 147.25 EUR /m2 | 140.00 | 1 | Oliwia Michalska |
| OF-DEM-00160 | ul. Dluga 32, Krakow | 2 380 574 PLN | 22 672.13 PLN /m2 | 105.00 | 5 | Oliwia Michalska |
| OF-DEM-00159 | ul. Klonowa 94, Krakow | 9 880 PLN | 74.85 PLN /m2 | 132.00 | 10 | Karol Szymanski |
| OF-DEM-00158 | ul. Mickiewicza 211, Krakow | 16 895 PLN | 78.95 PLN /m2 | 214.00 | 3 | Karol Szymanski |
| OF-DEM-00157 | ul. Morska 8, Krakow | 10 903 PLN | 145.37 PLN /m2 | 75.00 | 3 | Karol Szymanski |
| OF-DEM-00156 | ul. Debowa 46, Krakow | 1 721 375 PLN | 14 968.48 PLN /m2 | 115.00 | 2 | Karol Szymanski |
| OF-DEM-00155 | ul. Debowa 38, Krakow | 25 149 PLN | 99.01 PLN /m2 | 254.00 | 5 | Karol Szymanski |
| OF-DEM-00154 | ul. Widok 172, Krakow | 7 387 PLN | 1.5 PLN /m2 | Karol Szymanski | ||
| OF-DEM-00153 | ul. Slowackiego 146, Krakow | 18 082 PLN | 53.82 PLN /m2 | 336.00 | 4 | Justyna Wrona |
| OF-DEM-00152 | ul. Chmielna 2, Krakow | 5 575 PLN | 2.24 PLN /m2 | Justyna Wrona | ||
| OF-DEM-00151 | ul. Chmielna 170, Krakow | 849 037 PLN | 17 327.29 PLN /m2 | 49.00 | 3 | Justyna Wrona |
| OF-DEM-00150 | ul. Morska 5, Krakow | 1 696 107 PLN | 10 342.12 PLN /m2 | 164.00 | 9 | Justyna Wrona |
| OF-DEM-00149 | ul. Parkowa 39, Krakow | 17 646 EUR | 171.32 EUR /m2 | 103.00 | 9 | Justyna Wrona |
| OF-DEM-00148 | ul. Jasna 122, Krakow | 1 703 680 PLN | 29 889.12 PLN /m2 | 57.00 | 8 | Justyna Wrona |
| OF-DEM-00147 | ul. Widok 11, Krakow | 26 984 PLN | 421.63 PLN /m2 | 64.00 | 4 | Justyna Wrona |
| OF-DEM-00146 | ul. Ogrodowa 171, Krakow | 1 759 337 USD | 8 107.54 USD /m2 | 217.00 | 7 | Justyna Wrona |
| OF-DEM-00145 | ul. Mickiewicza 204, Krakow | 892 099 EUR | 578.53 EUR /m2 | Hubert Piotrowski | ||
| OF-DEM-00144 | ul. Polna 97, Krakow | 18 670 EUR | 239.36 EUR /m2 | 78.00 | 1 | Hubert Piotrowski |
| OF-DEM-00143 | ul. Widok 90, Krakow | 2 937 763 EUR | 12 040.01 EUR /m2 | 244.00 | 7 | Hubert Piotrowski |
| OF-DEM-00142 | ul. Sienna 208, Krakow | 636 830 PLN | 120.5 PLN /m2 | Hubert Piotrowski | ||
| OF-DEM-00141 | ul. Sienna 50, Krakow | 20 954 PLN | 220.57 PLN /m2 | 95.00 | 3 | Magda Zajac |
| OF-DEM-00140 | ul. Dluga 154, Krakow | 1 090 856 PLN | 24 792.18 PLN /m2 | 44.00 | 1 | Magda Zajac |
| OF-DEM-00139 | ul. Debowa 81, Krakow | 2 509 696 PLN | 17 189.7 PLN /m2 | 146.00 | 5 | Magda Zajac |
| OF-DEM-00138 | ul. Lipowa 156, Krakow | 2 225 621 GBP | 24 191.53 GBP /m2 | 92.00 | 6 | Magda Zajac |
| OF-DEM-00137 | ul. Klonowa 201, Krakow | 1 657 612 EUR | 21 810.68 EUR /m2 | 76.00 | 1 | Magda Zajac |
| OF-DEM-00136 | ul. Lesna 217, Krakow | 843 075 EUR | 485.64 EUR /m2 | Magda Zajac | ||
| OF-DEM-00135 | ul. Mickiewicza 151, Krakow | 19 869 EUR | 168.38 EUR /m2 | 118.00 | 5 | Magda Zajac |
| OF-DEM-00134 | ul. Dluga 219, Krakow | 1 347 340 EUR | 9 421.96 EUR /m2 | 143.00 | 3 | Magda Zajac |
| OF-DEM-00133 | ul. Ogrodowa 88, Krakow | 1 702 110 PLN | 28 368.5 PLN /m2 | 60.00 | 9 | Sebastian Jablonski |
| OF-DEM-00132 | ul. Klonowa 217, Krakow | 23 536 PLN | 264.45 PLN /m2 | 89.00 | 1 | Sebastian Jablonski |
| OF-DEM-00131 | ul. Szafirowa 128, Krakow | 1 033 539 PLN | 10 439.79 PLN /m2 | 99.00 | 4 | Sebastian Jablonski |
| OF-DEM-00130 | ul. Polna 208, Krakow | 1 287 088 PLN | 8 044.3 PLN /m2 | 160.00 | 8 | Sebastian Jablonski |
| OF-DEM-00129 | ul. Dluga 46, Krakow | 739 606 PLN | 12 124.69 PLN /m2 | 61.00 | 1 | Sebastian Jablonski |
| OF-DEM-00128 | ul. Kwiatowa 85, Krakow | 1 889 789 USD | 19 088.78 USD /m2 | 99.00 | 9 | Paulina Kaczmarek |
| OF-DEM-00127 | ul. Sienna 16, Krakow | 535 372 PLN | 4 537.05 PLN /m2 | 118.00 | 1 | Paulina Kaczmarek |
| OF-DEM-00126 | ul. Polna 160, Krakow | 26 925 GBP | 197.98 GBP /m2 | 136.00 | 5 | Paulina Kaczmarek |
| OF-DEM-00125 | ul. Debowa 31, Krakow | 1 525 086 PLN | 4 308.15 PLN /m2 | 354.00 | 6 | Paulina Kaczmarek |
| OF-DEM-00124 | ul. Jasna 179, Krakow | 24 340 GBP | 593.66 GBP /m2 | 41.00 | 3 | Paulina Kaczmarek |
| OF-DEM-00123 | ul. Slowackiego 54, Krakow | 863 300 EUR | 19 184.44 EUR /m2 | 45.00 | 4 | Krystian Baran |
| OF-DEM-00122 | ul. Slowackiego 86, Krakow | 29 075 GBP | 232.6 GBP /m2 | 125.00 | 6 | Krystian Baran |
| OF-DEM-00121 | ul. Lesna 61, Krakow | 15 682 PLN | 121.57 PLN /m2 | 129.00 | 5 | Krystian Baran |
| OF-DEM-00120 | ul. Kwiatowa 116, Krakow | 1 135 842 PLN | 13 684.84 PLN /m2 | 83.00 | 2 | Krystian Baran |
| OF-DEM-00119 | ul. Lipowa 186, Krakow | 20 457 USD | 730.61 USD /m2 | 28.00 | 5 | Krystian Baran |
| OF-DEM-00118 | ul. Szafirowa 99, Krakow | 1 399 973 PLN | 11 864.18 PLN /m2 | 118.00 | 3 | Krystian Baran |
| OF-DEM-00117 | ul. Krolewska 15, Krakow | 1 061 243 PLN | 25 883.98 PLN /m2 | 41.00 | 3 | Weronika Sikora |
| OF-DEM-00116 | ul. Mickiewicza 68, Krakow | 1 508 412 PLN | 17 539.67 PLN /m2 | 86.00 | 5 | Weronika Sikora |
| OF-DEM-00115 | ul. Szafirowa 154, Krakow | 2 445 254 USD | 25 208.8 USD /m2 | 97.00 | 9 | Weronika Sikora |
| OF-DEM-00114 | ul. Szafirowa 51, Krakow | 2 118 466 EUR | 12 316.66 EUR /m2 | 172.00 | 8 | Weronika Sikora |
| OF-DEM-00113 | ul. Slowackiego 9, Krakow | 1 124 917 PLN | 25 566.3 PLN /m2 | 44.00 | 3 | Damian Walczak |
| OF-DEM-00112 | ul. Chmielna 52, Krakow | 22 114 PLN | 68.46 PLN /m2 | 323.00 | 7 | Damian Walczak |
| OF-DEM-00111 | ul. Chmielna 121, Krakow | 16 052 PLN | 120.69 PLN /m2 | 133.00 | 2 | Damian Walczak |
| OF-DEM-00110 | ul. Klonowa 160, Krakow | 2 000 853 EUR | 17 101.31 EUR /m2 | 117.00 | 3 | Damian Walczak |
| OF-DEM-00109 | ul. Widok 102, Krakow | 2 114 046 EUR | 35 831.29 EUR /m2 | 59.00 | 4 | Damian Walczak |
| OF-DEM-00108 | ul. Klonowa 11, Krakow | 752 645 EUR | 25 953.28 EUR /m2 | 29.00 | 2 | Damian Walczak |
| OF-DEM-00107 | ul. Krolewska 21, Krakow | 2 588 506 USD | 55 074.6 USD /m2 | 47.00 | 10 | Damian Walczak |
| OF-DEM-00106 | ul. Jasna 43, Krakow | 903 105 PLN | 8 063.44 PLN /m2 | 112.00 | 5 | Izabela Czarnecka |
| OF-DEM-00105 | ul. Debowa 134, Krakow | 5 490 GBP | 0.87 GBP /m2 | Izabela Czarnecka | ||
| OF-DEM-00104 | ul. Mickiewicza 6, Krakow | 4 997 GBP | 35.44 GBP /m2 | 141.00 | 6 | Izabela Czarnecka |
| OF-DEM-00103 | ul. Ogrodowa 92, Krakow | 28 151 PLN | 263.09 PLN /m2 | 107.00 | 4 | Izabela Czarnecka |
| OF-DEM-00102 | ul. Polna 62, Krakow | 11 121 PLN | 117.06 PLN /m2 | 95.00 | 5 | Izabela Czarnecka |
| OF-DEM-00101 | ul. Klonowa 85, Krakow | 1 268 180 PLN | 15 852.25 PLN /m2 | 80.00 | 10 | Izabela Czarnecka |
| OF-DEM-00100 | ul. Jasna 76, Krakow | 1 768 293 PLN | 12 907.25 PLN /m2 | 137.00 | 3 | Izabela Czarnecka |
| OF-DEM-00099 | ul. Widok 216, Krakow | 2 372 777 EUR | 29 659.71 EUR /m2 | 80.00 | 5 | Izabela Czarnecka |
| OF-DEM-00098 | ul. Polna 208, Gdansk | 17 689 EUR | 157.94 EUR /m2 | 112.00 | 4 | Bartosz Adamczyk |
| OF-DEM-00097 | ul. Sienna 60, Gdansk | 28 876 PLN | 260.14 PLN /m2 | 111.00 | 4 | Bartosz Adamczyk |
| OF-DEM-00096 | ul. Sienna 39, Gdansk | 3 031 PLN | 4.9 PLN /m2 | Bartosz Adamczyk | ||
| OF-DEM-00095 | ul. Jasna 175, Gdansk | 13 958 EUR | 85.11 EUR /m2 | 164.00 | 7 | Patrycja Dudek |
| OF-DEM-00094 | ul. Parkowa 208, Gdansk | 1 969 432 GBP | 59 679.76 GBP /m2 | 33.00 | 6 | Patrycja Dudek |
| OF-DEM-00093 | ul. Chmielna 9, Gdansk | 18 069 PLN | 401.53 PLN /m2 | 45.00 | 1 | Patrycja Dudek |
| OF-DEM-00092 | ul. Szafirowa 93, Gdansk | 2 416 238 PLN | 24 406.44 PLN /m2 | 99.00 | 5 | Patrycja Dudek |
| OF-DEM-00091 | ul. Jasna 179, Gdansk | 10 713 EUR | 96.51 EUR /m2 | 111.00 | 3 | Patrycja Dudek |
| OF-DEM-00090 | ul. Chmielna 155, Gdansk | 11 459 PLN | 337.03 PLN /m2 | 34.00 | 3 | Patrycja Dudek |
| OF-DEM-00089 | ul. Slowackiego 96, Gdansk | 468 446 USD | 3 165.18 USD /m2 | 148.00 | 2 | Patrycja Dudek |
| OF-DEM-00088 | ul. Mickiewicza 153, Gdansk | 882 790 PLN | 4 527.13 PLN /m2 | 195.00 | 7 | Mateusz Stepien |
| OF-DEM-00087 | ul. Debowa 55, Gdansk | 30 329 USD | 286.12 USD /m2 | 106.00 | 4 | Mateusz Stepien |
| OF-DEM-00086 | ul. Krolewska 16, Gdansk | 269 900 EUR | 66.31 EUR /m2 | Mateusz Stepien | ||
| OF-DEM-00085 | ul. Slowackiego 12, Gdansk | 438 964 EUR | 2 965.97 EUR /m2 | 148.00 | 4 | Mateusz Stepien |
| OF-DEM-00084 | ul. Polna 203, Gdansk | 1 439 730 PLN | 12 854.73 PLN /m2 | 112.00 | 2 | Mateusz Stepien |
| OF-DEM-00083 | ul. Chmielna 54, Gdansk | 6 110 USD | 69.43 USD /m2 | 88.00 | 4 | Mateusz Stepien |
| OF-DEM-00082 | ul. Jasna 174, Gdansk | 14 896 PLN | 219.06 PLN /m2 | 68.00 | 1 | Aleksandra Olszewska |
| OF-DEM-00081 | ul. Debowa 31, Gdansk | 16 255 GBP | 48.52 GBP /m2 | 335.00 | 5 | Aleksandra Olszewska |
| OF-DEM-00080 | ul. Dluga 124, Gdansk | 1 128 128 PLN | 8 745.18 PLN /m2 | 129.00 | 8 | Kamil Majewski |
| OF-DEM-00079 | ul. Chmielna 100, Gdansk | 30 150 GBP | 257.69 GBP /m2 | 117.00 | 2 | Kamil Majewski |
| OF-DEM-00078 | ul. Debowa 121, Gdansk | 33 661 PLN | 358.1 PLN /m2 | 94.00 | 4 | Kamil Majewski |
| OF-DEM-00077 | ul. Krolewska 196, Gdansk | 958 989 PLN | 6 568.42 PLN /m2 | 146.00 | 4 | Kamil Majewski |
| OF-DEM-00076 | ul. Dluga 115, Gdansk | 2 871 USD | 87 USD /m2 | 33.00 | 1 | Kamil Majewski |
| OF-DEM-00075 | ul. Slowackiego 167, Gdansk | 14 075 EUR | 101.99 EUR /m2 | 138.00 | 2 | Dominika Nowicka |
| OF-DEM-00074 | ul. Ogrodowa 117, Gdansk | 3 457 675 GBP | 24 522.52 GBP /m2 | 141.00 | 7 | Dominika Nowicka |
| OF-DEM-00073 | ul. Szafirowa 220, Gdansk | 1 721 157 USD | 20 489.96 USD /m2 | 84.00 | 6 | Dominika Nowicka |
| OF-DEM-00072 | ul. Szafirowa 127, Gdansk | 1 746 356 PLN | 8 160.54 PLN /m2 | 214.00 | 9 | Dominika Nowicka |
| OF-DEM-00071 | ul. Slowackiego 152, Gdansk | 30 925 PLN | 325.53 PLN /m2 | 95.00 | 2 | Rafal Wrobel |
| OF-DEM-00070 | ul. Slowackiego 12, Gdansk | 2 135 036 PLN | 42 700.72 PLN /m2 | 50.00 | 3 | Rafal Wrobel |
| OF-DEM-00069 | ul. Chmielna 196, Gdansk | 11 353 USD | 118.26 USD /m2 | 96.00 | 3 | Rafal Wrobel |
| OF-DEM-00068 | ul. Klonowa 141, Gdansk | 17 660 PLN | 51.94 PLN /m2 | 340.00 | 10 | Rafal Wrobel |
| OF-DEM-00067 | ul. Szafirowa 120, Gdansk | 1 408 695 PLN | 10 282.45 PLN /m2 | 137.00 | 4 | Rafal Wrobel |
| OF-DEM-00066 | ul. Widok 125, Gdansk | 2 519 703 PLN | 14 821.78 PLN /m2 | 170.00 | 6 | Joanna Wieczorek |
| OF-DEM-00065 | ul. Slowackiego 73, Gdansk | 1 893 469 GBP | 473.37 GBP /m2 | Joanna Wieczorek | ||
| OF-DEM-00064 | ul. Morska 181, Gdansk | 1 241 409 EUR | 280.04 EUR /m2 | Joanna Wieczorek | ||
| OF-DEM-00063 | ul. Szafirowa 54, Gdansk | 1 385 627 USD | 11 357.6 USD /m2 | 122.00 | 4 | Joanna Wieczorek |
| OF-DEM-00062 | ul. Mickiewicza 85, Gdansk | 12 372 PLN | 67.98 PLN /m2 | 182.00 | 9 | Marek Krol |
| OF-DEM-00061 | ul. Morska 177, Gdansk | 530 649 EUR | 7 473.93 EUR /m2 | 71.00 | 2 | Marek Krol |
| OF-DEM-00060 | ul. Lipowa 211, Gdansk | 1 467 515 PLN | 18 117.47 PLN /m2 | 81.00 | 5 | Natalia Pawlowska |
| OF-DEM-00059 | ul. Jasna 77, Gdansk | 579 426 EUR | 8 520.97 EUR /m2 | 68.00 | 5 | Natalia Pawlowska |
| OF-DEM-00058 | ul. Widok 214, Gdansk | 1 238 486 USD | 12 900.9 USD /m2 | 96.00 | 4 | Natalia Pawlowska |
| OF-DEM-00057 | ul. Polna 5, Gdansk | 3 519 173 USD | 12 704.6 USD /m2 | 277.00 | 8 | Lukasz Grabowski |
| OF-DEM-00056 | ul. Krolewska 90, Gdansk | 1 457 621 PLN | 13 131.72 PLN /m2 | 111.00 | 4 | Lukasz Grabowski |
| OF-DEM-00055 | ul. Kwiatowa 119, Gdansk | 32 043 GBP | 471.22 GBP /m2 | 68.00 | 6 | Karolina Kwiatkowska |
| OF-DEM-00054 | ul. Klonowa 94, Gdansk | 2 176 996 EUR | 368.36 EUR /m2 | Karolina Kwiatkowska | ||
| OF-DEM-00053 | ul. Szafirowa 77, Gdansk | 511 986 PLN | 13 127.85 PLN /m2 | 39.00 | 5 | Karolina Kwiatkowska |
| OF-DEM-00052 | ul. Klonowa 63, Gdansk | 1 363 956 PLN | 29 651.22 PLN /m2 | 46.00 | 1 | Karolina Kwiatkowska |
| OF-DEM-00051 | ul. Debowa 198, Gdansk | 2 558 563 GBP | 67 330.61 GBP /m2 | 38.00 | 5 | Karolina Kwiatkowska |
| OF-DEM-00050 | ul. Szafirowa 169, Gdansk | 8 153 USD | 209.05 USD /m2 | 39.00 | 2 | Karolina Kwiatkowska |
| OF-DEM-00049 | ul. Debowa 127, Gdansk | 2 023 147 PLN | 14 348.56 PLN /m2 | 141.00 | 1 | Pawel Wojciechowski |
| OF-DEM-00048 | ul. Sienna 208, Gdansk | 619 294 PLN | 130.76 PLN /m2 | Pawel Wojciechowski | ||
| OF-DEM-00047 | ul. Klonowa 188, Gdansk | 22 137 EUR | 632.49 EUR /m2 | 35.00 | 1 | Pawel Wojciechowski |
| OF-DEM-00046 | ul. Szafirowa 181, Gdansk | 1 648 793 GBP | 16 324.68 GBP /m2 | 101.00 | 6 | Pawel Wojciechowski |
| OF-DEM-00045 | ul. Klonowa 71, Gdansk | 28 576 USD | 439.63 USD /m2 | 65.00 | 5 | Pawel Wojciechowski |
| OF-DEM-00044 | ul. Krolewska 101, Gdansk | 1 634 383 EUR | 7 601.78 EUR /m2 | 215.00 | 4 | Pawel Wojciechowski |
| OF-DEM-00043 | ul. Szafirowa 27, Gdansk | 1 870 667 PLN | 22 813.01 PLN /m2 | 82.00 | 2 | Pawel Wojciechowski |
| OF-DEM-00042 | ul. Mickiewicza 84, Gdansk | 33 012 GBP | 226.11 GBP /m2 | 146.00 | 2 | Monika Mazur |
| OF-DEM-00041 | ul. Krolewska 25, Gdansk | 20 256 EUR | 136.86 EUR /m2 | 148.00 | 4 | Marcin Krawczyk |
| OF-DEM-00040 | ul. Parkowa 192, Gdansk | 1 835 324 EUR | 22 382 EUR /m2 | 82.00 | 1 | Marcin Krawczyk |
| OF-DEM-00039 | ul. Polna 151, Gdansk | 10 542 EUR | 59.56 EUR /m2 | 177.00 | 6 | Anna Jankowska |
| OF-DEM-00038 | ul. Widok 105, Gdansk | 17 254 EUR | 210.41 EUR /m2 | 82.00 | 3 | Anna Jankowska |
| OF-DEM-00037 | ul. Klonowa 149, Gdansk | 3 466 162 PLN | 21 007.04 PLN /m2 | 165.00 | 10 | Anna Jankowska |
| OF-DEM-00036 | ul. Lesna 29, Gdansk | 12 584 PLN | 33.03 PLN /m2 | 381.00 | 10 | Anna Jankowska |
| OF-DEM-00035 | ul. Widok 38, Gdansk | 21 641 GBP | 161.5 GBP /m2 | 134.00 | 3 | Anna Jankowska |
| OF-DEM-00034 | ul. Klonowa 166, Gdansk | 2 132 553 PLN | 25 693.41 PLN /m2 | 83.00 | 5 | Tomasz Dabrowski |
| OF-DEM-00033 | ul. Slowackiego 108, Gdansk | 19 225 EUR | 150.2 EUR /m2 | 128.00 | 4 | Tomasz Dabrowski |
| OF-DEM-00032 | ul. Debowa 200, Gdansk | 22 303 EUR | 262.39 EUR /m2 | 85.00 | 2 | Tomasz Dabrowski |
| OF-DEM-00031 | ul. Lipowa 147, Gdansk | 247 114 PLN | 53.48 PLN /m2 | Tomasz Dabrowski | ||
| OF-DEM-00030 | ul. Lesna 66, Gdansk | 8 763 PLN | 70.1 PLN /m2 | 125.00 | 2 | Tomasz Dabrowski |
| OF-DEM-00029 | ul. Dluga 214, Gdansk | 2 073 682 PLN | 34 561.37 PLN /m2 | 60.00 | 6 | Agnieszka Lewandowska |
| OF-DEM-00028 | ul. Slowackiego 39, Gdansk | 29 363 EUR | 652.51 EUR /m2 | 45.00 | 3 | Agnieszka Lewandowska |
| OF-DEM-00027 | ul. Mickiewicza 215, Gdansk | 29 710 PLN | 203.49 PLN /m2 | 146.00 | 2 | Agnieszka Lewandowska |
| OF-DEM-00026 | ul. Sienna 111, Warszawa | 4 342 PLN | 40.58 PLN /m2 | 107.00 | 3 | Piotr Kaminski |
| OF-DEM-00025 | ul. Dluga 44, Warszawa | 11 288 PLN | 69.25 PLN /m2 | 163.00 | 8 | Piotr Kaminski |
| OF-DEM-00024 | ul. Sienna 38, Warszawa | 1 484 PLN | 0.62 PLN /m2 | Piotr Kaminski | ||
| OF-DEM-00023 | ul. Parkowa 204, Warszawa | 20 625 USD | 448.37 USD /m2 | 46.00 | 6 | Piotr Kaminski |
| OF-DEM-00022 | ul. Klonowa 219, Warszawa | 540 157 USD | 95.11 USD /m2 | Piotr Kaminski | ||
| OF-DEM-00021 | ul. Mickiewicza 219, Warszawa | 4 723 GBP | 2.35 GBP /m2 | Piotr Kaminski | ||
| OF-DEM-00020 | ul. Kwiatowa 191, Warszawa | 1 854 707 GBP | 282.04 GBP /m2 | Ewa Kowalczyk | ||
| OF-DEM-00019 | ul. Morska 175, Warszawa | 1 959 201 PLN | 32 653.35 PLN /m2 | 60.00 | 3 | Ewa Kowalczyk |
| OF-DEM-00018 | ul. Polna 89, Warszawa | 31 686 GBP | 326.66 GBP /m2 | 97.00 | 6 | Ewa Kowalczyk |
| OF-DEM-00017 | ul. Lesna 29, Warszawa | 337 231 PLN | 233.7 PLN /m2 | Ewa Kowalczyk | ||
| OF-DEM-00016 | ul. Mickiewicza 10, Warszawa | 2 498 570 EUR | 23 571.42 EUR /m2 | 106.00 | 6 | Michal Zielinski |
| OF-DEM-00015 | ul. Klonowa 199, Warszawa | 365 484 PLN | 93.59 PLN /m2 | Michal Zielinski | ||
| OF-DEM-00014 | ul. Lipowa 16, Warszawa | 10 520 PLN | 28.05 PLN /m2 | 375.00 | 9 | Michal Zielinski |
| OF-DEM-00013 | ul. Lesna 13, Warszawa | 809 256 PLN | 1 366.99 PLN /m2 | Michal Zielinski | ||
| OF-DEM-00012 | ul. Parkowa 52, Warszawa | 2 431 942 PLN | 46 768.12 PLN /m2 | 52.00 | 1 | Michal Zielinski |
| OF-DEM-00011 | ul. Polna 9, Warszawa | 1 665 699 PLN | 21 084.8 PLN /m2 | 79.00 | 3 | Michal Zielinski |
| OF-DEM-00010 | ul. Polna 1, Warszawa | 2 167 PLN | 0.7 PLN /m2 | Michal Zielinski | ||
| OF-DEM-00009 | ul. Lesna 119, Warszawa | 1 468 099 EUR | 511.53 EUR /m2 | Katarzyna Wisniewska | ||
| OF-DEM-00008 | ul. Ogrodowa 137, Warszawa | 21 995 PLN | 102.78 PLN /m2 | 214.00 | 6 | Katarzyna Wisniewska |
| OF-DEM-00007 | ul. Lipowa 59, Warszawa | 939 742 USD | 10 678.89 USD /m2 | 88.00 | 2 | Katarzyna Wisniewska |
| OF-DEM-00006 | ul. Klonowa 43, Warszawa | 1 078 181 USD | 6 823.93 USD /m2 | 158.00 | 7 | Katarzyna Wisniewska |
| OF-DEM-00005 | ul. Polna 39, Warszawa | 17 743 GBP | 377.51 GBP /m2 | 47.00 | 3 | Katarzyna Wisniewska |
| OF-DEM-00004 | ul. Sienna 2, Warszawa | 1 793 713 PLN | 18 118.31 PLN /m2 | 99.00 | 6 | Katarzyna Wisniewska |
| OF-DEM-00003 | ul. Chmielna 160, Warszawa | 857 374 PLN | 8 165.47 PLN /m2 | 105.00 | 5 | Adam Nowak |
| OF-DEM-00002 | ul. Mickiewicza 220, Warszawa | 2 022 017 PLN | 15 203.14 PLN /m2 | 133.00 | 6 | Adam Nowak |
| OF-DEM-00001 | ul. Szafirowa 66, Warszawa | 900 540 GBP | 5 175.52 GBP /m2 | 174.00 | 3 | Adam Nowak |